Luxus duplex ikerházfél tetőterasszal Szent-Imre kertvárosban
Áttekintés
2025 augusztus 4.
5167
Leírás
Kivételes ajánlat a XVIII. kerület szívében – Luxus 2 emeletes ikerházfél tetőterasszal Szent-Imre kertvárosban!
Eladásra kínálunk Budapest XVIII. kerületének egyik legkedveltebb, csendes és családbarát részén, Szent-Imre kertvárosban, egy 2015-ben épült, modern minimál stílusú, kimagasló műszaki tartalommal rendelkező ikerházfelet.
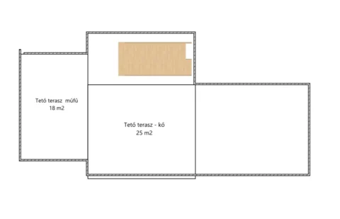
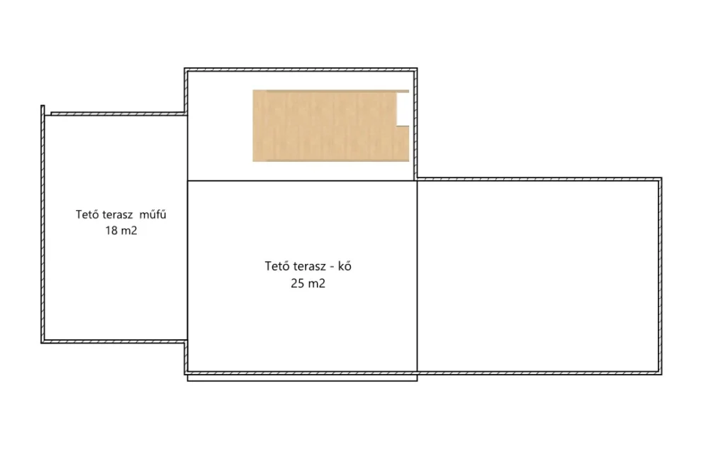
Az ingatlan igazi kuriózum: 45 m²-es, panorámás tetőterasz tartozik hozzá, amely ebben a környékben szinte egyedülálló! Ez a különleges adottság egyedi életérzést kínál, legyen szó baráti összejövetelekről vagy nyugodt, esti pihenésről.
Főbb jellemzők:
-
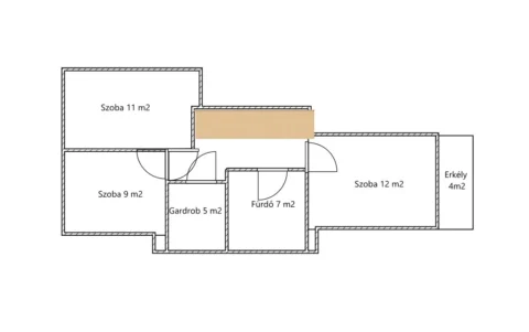
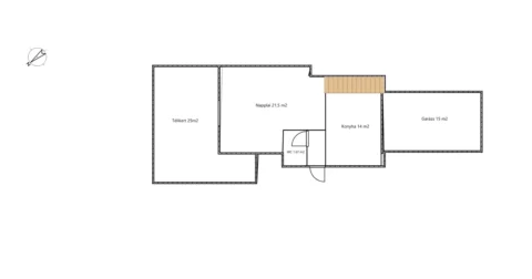
Hasznos alapterület: tágas, világos belső terek, átgondolt elrendezéssel
-
Tetőterasz: 45 m², a ház teljes tetejét lefedő, páratlan kilátással
-
Télikert: hangulatos, 25 m²-es helyiség, egész évben használható
-
Parkolás: zárt garázs + 2 autó részére kialakított kocsibeálló
-
Kerti tároló: praktikus megoldás kültéri eszközöknek
Prémium műszaki felszereltség:
-
Napelemes rendszer – teljes rezsimentesség elérhető
-
Okosotthon funkciók – távoli vezérlés, maximális kényelem
-
Kamerarendszer + riasztó – teljes körű biztonság
-
Elektromos autó töltőállomás – környezettudatos megoldás
-
Új kondenzációs gázkazán (2024) – hatékony és korszerű fűtés
Elhelyezkedés:
A ház nyugodt, kertvárosi utcában helyezkedik el, mégis kiváló közlekedési kapcsolatokkal. A közelben iskolák, óvodák, játszóterek és bevásárlási lehetőségek is megtalálhatók, így családosok számára is ideális választás.
Ez az ingatlan nem csupán egy ház, hanem egy életstílus – modern megoldások, különleges dizájn és kiemelkedő kényelem várja új tulajdonosát.







